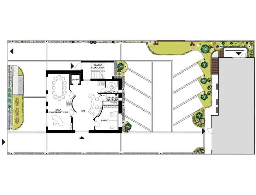
Publiczna Prywatna Świadectwa i audyty energetyczne Projekt budynku biurowego w Poznaniu DATA REALIZACJI: 01.2007 ARCHITEKCI: Jerzy Milewski, Elżbieta Nowak OPIS PROJEKTU: >>> Koncepcja
Projekt budynku biurowego w Poznaniu DATA REALIZACJI: 01.2007 ARCHITEKCI: Jerzy Milewski, Elżbieta Nowak OPIS PROJEKTU: >>> Koncepcja