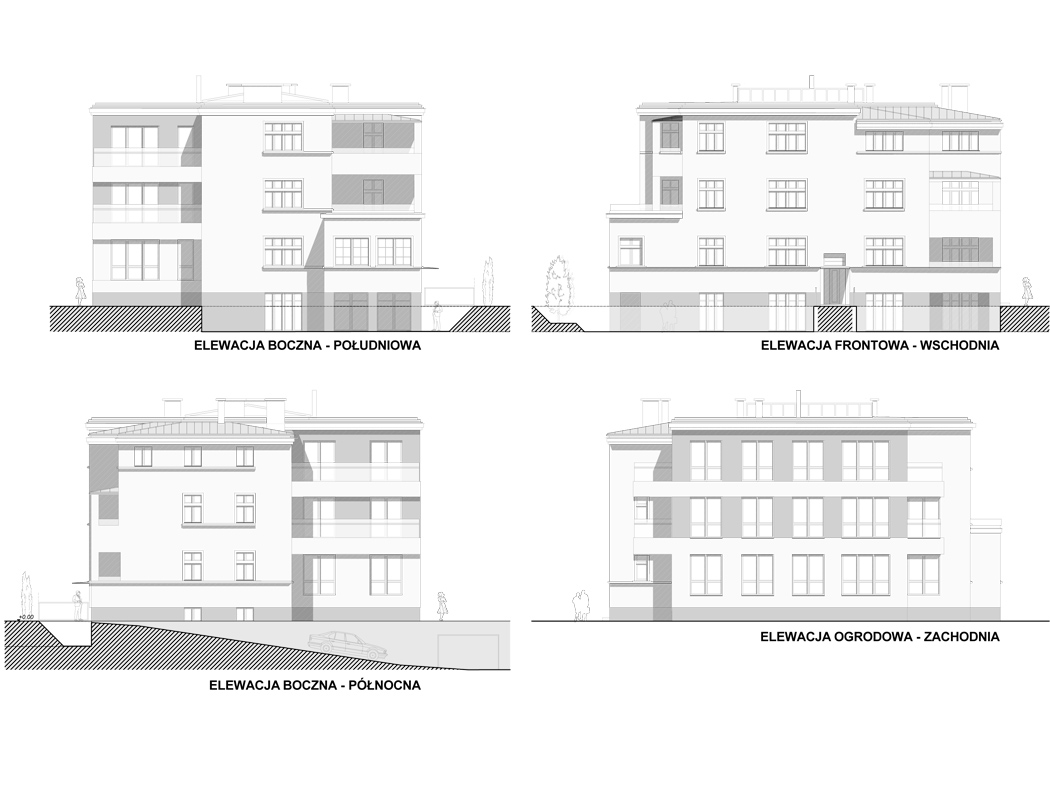
Rewitalizacja budynku wielorodzinnego w Poznaniu

DATA REALIZACJI: 03.2013

ARCHITEKCI:

Jerzy Milewski, Anna Książkiewicz, Marta Kuczko, Dawid Korzeniewski, Agnieszka Milewska

OPIS PROJEKTU:

Rewitalizacja budynku wielorodzinnego, wybudowanego w latach 30-tych XX wieku. Budynek znajdujący się w wykazie zabytków nieruchomych. Projekt - rozbudowa, nadbudowa i przebudowa, zagospodarowanie terenu. >>> Zrealizowany